Top-Grundstück in Chemnitz für DHH – sofort verfügbar 346 m²
Baugrundstück für Doppelhaushälfte in Chemnitz – ideal für Familien
Sie sind auf der Suche nach dem perfekten Ort für Ihr neues Zuhause? Dieses attraktive Baugrundstück in Chemnitz bietet Ihnen die ideale Grundlage für den Bau einer modernen Doppelhaushälfte (DHH) – perfekt für Familien, die sich den Traum vom Eigenheim erfüllen möchten.
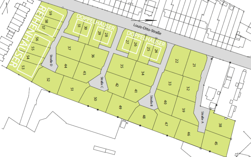
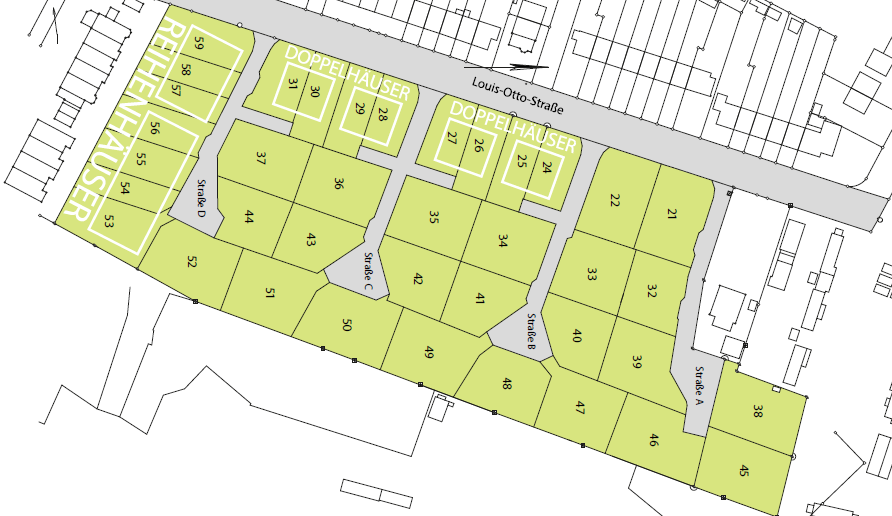
Das Grundstück umfasst 346 m² und befindet sich in einer ruhigen und familienfreundlichen Umgebung. Mit dem Flurstück 25 erhalten Sie ein optimal geschnittenes Grundstück, das vielfältige Gestaltungsmöglichkeiten für Ihr zukünftiges Zuhause bietet.
Ein großer Vorteil: Das Grundstück ist bereits voll erschlossen, sodass Sie direkt mit der Planung und dem Bau beginnen können. Zudem verfügt es über einen Fernwärmeanschluss, was eine effiziente, nachhaltige und komfortable Wärmeversorgung garantiert – ideal für modernes und umweltbewusstes Wohnen.
Der Kaufpreis beträgt 102.000 € und bietet damit ein attraktives Preis-Leistungs-Verhältnis für Baugrundstücke in Chemnitz.
Ihre Vorteile auf einen Blick:
- 346 m² Grundstücksfläche
- Flurstück 25
- Voll erschlossen
- Fernwärmeanschluss vorhanden
- Ideal für eine Doppelhaushälfte
- Perfekt für Familien
Nutzen Sie diese Gelegenheit und schaffen Sie sich ein Zuhause, in dem sich Ihre Familie rundum wohlfühlen kann.
Kontaktieren Sie uns gerne für weitere Informationen oder einen Besichtigungstermin – wir freuen uns auf Ihre Anfrage!
| Objekt ID: | CH/25 |
| Verfügbar ab: | sofort |
| Kaufpreis: | 102.000 EUR |
| Kaufpreis pro qm: | 295 EUR |
| Provision für Käufer: | provisionsfrei |
| Area: | Wohngebiet |
| Erschließung: | ja |
| Gesamtfläche: | 346m² |
| Baujahr: | ab 2026 |
| Befeuerungsart: | Fernwärme |









