Bungalow Anwesen Lebensfreude 113m²
Anwesen Lebensfreude – Ihr moderner Bungalow als Fertigteilhaus
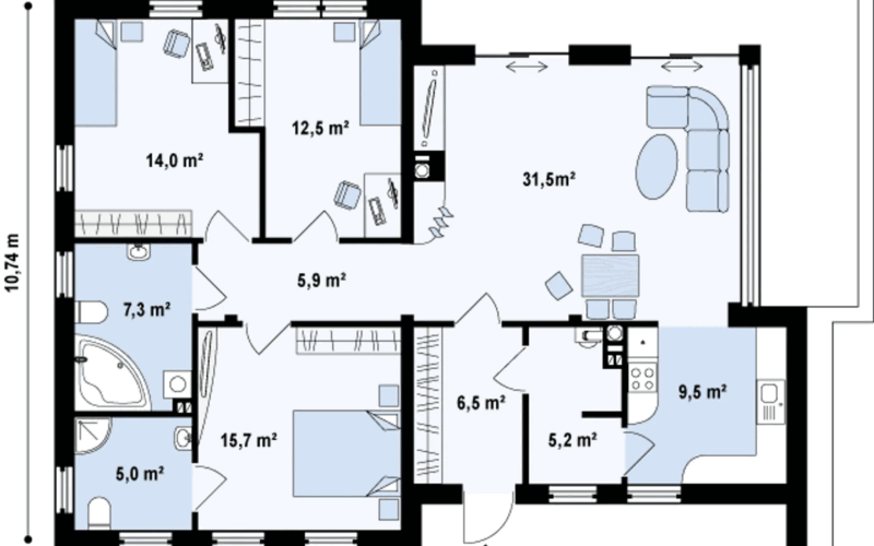
Willkommen im Bungalow „Anwesen Lebensfreude“ – ein architektonisches Highlight mit 113 m² Wohnfläche, das modernste Bauweise mit nachhaltigem Komfort vereint. Dieser Neubau ist ideal für gut verdienende Paare oder Singles im mittleren Lebensalter ohne Kinder, die ihr Zuhause nach eigenen Vorstellungen gestalten möchten.
Hochmoderne Bauweise für höchste Ansprüche
Das „Anwesen Lebensfreude“ wird als Fertigteilhaus in innovativer Metallrahmen- und Holzständerbauweise errichtet. Diese Kombination garantiert nicht nur eine schnelle und präzise Bauzeit, sondern auch außergewöhnliche Stabilität und Langlebigkeit. Mit dem KfW-40-Standard setzen Sie auf höchste Energieeffizienz, die durch modernste Dämmung und nachhaltige Technologien unterstützt wird – für ein umweltbewusstes Zuhause mit niedrigen Betriebskosten.
Ihr Freiraum für individuelle Gestaltung
Dieser Bungalow ist ein Neubau ohne vorgegebene Einrichtung, sodass Sie Ihre Vision von modernem Wohnen frei entfalten können. Die großzügigen Glasfronten sorgen für lichtdurchflutete Räume und ein offenes Raumgefühl, während die flexible Grundrissgestaltung Ihnen alle Möglichkeiten bietet, Ihr Traumhaus individuell zu konfigurieren.
Ihre Vorteile auf einen Blick
- Offener Wohnbereich: Großzügiger Raum für Ihre kreativen Einrichtungsideen, ideal für stilvolle Abende oder entspannte Stunden zu zweit.
- Individuelle Gestaltungsfreiheit: Keine vorgegebene Einrichtung – gestalten Sie Küche, Bad und Wohnbereiche ganz nach Ihrem Geschmack.
- Smart Home ready: Vorbereitet für intelligente Steuerung von Licht, Heizung und Sicherheit – anpassbar an Ihre Bedürfnisse.
- Barrierefreies Design: Ebenerdig und zukunftssicher, für ein komfortables und sorgenfreies Leben.
- Hochmoderne Bauweise: Metallrahmen- und Holzständerkonstruktion für Stabilität, Langlebigkeit und Nachhaltigkeit.
Ein Zuhause, das Ihre Lebensfreude widerspiegelt
Das „Anwesen Lebensfreude“ bietet Ihnen die perfekte Basis, um Ihren Lebensstil ohne Kompromisse zu verwirklichen. Die moderne, ebenerdige Architektur schafft ein Gefühl von Leichtigkeit und Eleganz, während die hochwertige Bauweise und die Möglichkeit zur individuellen Gestaltung Ihren persönlichen Ansprüchen gerecht werden. Ob ein stilvolles Home-Office, ein minimalistischer Wohnbereich oder ein privater Garten – hier schaffen Sie sich Ihren persönlichen Rückzugsort.
Nachhaltigkeit und Wirtschaftlichkeit
Mit dem KfW-55-Standard profitieren Sie von minimalem Energieverbrauch und attraktiven Fördermöglichkeiten. Die innovative Bauweise kombiniert mit nachhaltigen Materialien macht diesen Bungalow zu einer Investition in Ihre Zukunft – ökologisch und finanziell.
Warum „Anwesen Lebensfreude“?
- Exklusivität: Hochmoderne Metallrahmen- und Holzständerbauweise für ein einzigartiges Wohngefühl.
- Freiheit: Neubau ohne Einrichtung für maximale Gestaltungsmöglichkeiten.
- Nachhaltigkeit: KfW-55-Standard für ein gutes Gewissen und geringe Betriebskosten.
- Lebensstil: Perfekt für Paare oder Singles, die Wert auf Qualität und Individualität legen.
Gestalten Sie Ihr Traumhaus! Kontaktieren Sie uns noch heute, um mehr über das „Anwesen Lebensfreude“ zu erfahren und Ihre persönliche Planung zu starten. Ihr neues Zuhause wartet auf Ihre Ideen!
| Objekt ID: | Anwesen Lebensfreude |
| Verfügbar ab: | sofort |
| Kaufpreis: | ab 316.400 EUR |
| Kaufpreis Garage: | Auf Anfrage EUR |
| Kaufpreis pro qm: | ab 2.800 EUR |
| Provision für Verkäufer: | ohne |
| Energietyp: | KFW 55-KfW 40 auf Anfrage |
| Dachform: | Flachdach |
| Ausbaustufe: | Schlüsselfertig |
| Bauweise: | Fertigteilhaus |
| Befeuerung: | Wärmepumpe |
| Zimmer: | 5 |
| Schlafzimmer: | 3 |
| Badezimmer: | 2 + Gäste-WC |
| Kellerräume: | auf Anfrage |
| Wohnfläche: | 113m² |
| Etage: | 1 |
| Etagen: | 1 |
| Baujahr: | aktuell |
| Objektzustand: | Neubau |
| Ausstattungskategorie: | gehoben |
| Heizungsart: | Fußbodenheizung |
| Befeuerungsart: | Wärmepumpe |
| Baujahr lt. Energieausweis: | aktuell |
| Energieeffizienzklasse: | KFW 55-KfW 40 auf Anfrage |
| Art des Energieausweises: | Wohngebäude |






